• family_family96.jpg
  • family_family96_2.jpg
Family

Hausprojekt

Family 96 V1

179.900

Sehen Sie hier alle Inklusivleistungen.

Danwood-Berater finden

Nutzen Sie die Unterstützung eines Spezialisten in Ihrer Region!

Beispiel: 12345
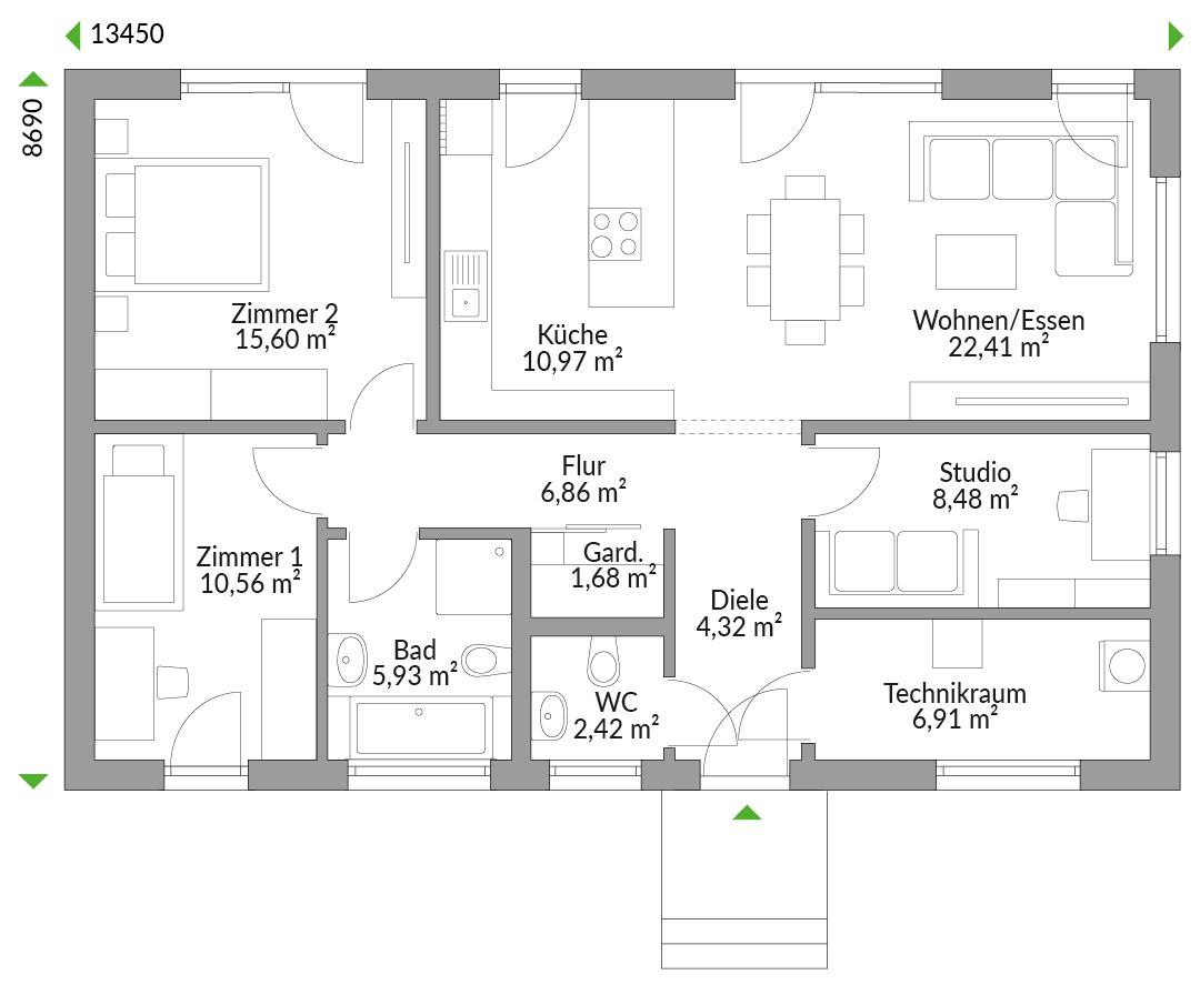
  • Fläche96,14
  • Geschosse1
  • Schlafzimmer3
  • Badezimmer1
  • Ankleide1
  • Breite8,69m
  • Länge13,45m
  • Höhe5,15m
  • Dachneigung22°
  • GarageNein

Drei Grundrissvarianten stehen zur Wahl… In jedem Falle ist man mit diesem Bungalow im Alter oder als Kleinfamilie up-to-date. Die durchdachten Raumaufteilungen gewährleisten individuelle Freiräume eines jeden Bewohners genauso wie die vielfältigen Möglichkeiten, mit Freunden und Familie zusammen zu sein. Bis zu drei Zimmer zur individuellen Verfügung ermöglichen auch ein Homeoffice, Platz für Hobbys oder Gästezimmer. Bodentiefe Fenster schaffen schöne Blickachsen in den Garten.

*Abbildungen zeigen teilweise individuelle Zusatzausstattung.

  • Technikpaket FAMILY inkl. Fußbodenheizung (Luft-Wasser-Wärmepumpe mit Fußbodenheizung und zentraler Lüftungsanlage)
  • Lüftungsanlage mit Wärmerückgewinnung
  • Elektropaket - Steckdosen und Lichtschalter, Deckenlichtanschlüsse innen und außen, Netzwerkanschlüsse und TV-Anschlüsse, Anschlüsse für Küchen- und Haushaltsgeräte
  • Fliesen
  • Sanitärausstattung
  • Erdgeschoss96,14
  • Wohnen/Essen22,41
  • Küche10,97
  • Diele4,32
  • Flur6,86
  • Zimmer 110,56
  • Zimmer 215,6
  • Studio8,48
  • Garderobe1,68
  • Bad5,93
  • WC2,42
  • Technikraum6,91

Grundrisse

Innenräume

Family

Linie Family

Mit unserem DAN-WOOD Family-Programm sparen Sie mehrfach: Dank des hohen Vorkonfigurationsgrad am Hauspreis, der  klimafreundlichen Bauweise mit günstiger Finanzierung und moderner Haus- und Heiztechnik bei den Heizkosten. Wählen Sie Ihren Wunschhaustyp - ob Bungalow, eineinhalbgeschossiges Haus oder schöner Zweigeschosser.

Entdecken Sie die Hauslinie Family

Weitere Projekte

 
 
 
 
 
 
 
 
 
 
 
 
 
 
 

Gebautes Vertrauen – mit jedem einzelnen Haus.

Sogar fremde Leute haben uns im Ort angesprochen, wie schön unser Haus ist. Klar macht einen das stolz.