Das mondäne Walmdach, das auch den gesamten großzügigen Terrassenbereich überdacht, beeindruckt nicht nur optisch. Es erweist sich vor allem als überaus praktisch. Es schützt Ihr Freiluftzimmer vor Regenschauern, und es bietet Raum zum Verstauen von Dingen, die man nur sehr selten braucht. Der ebenerdige Wohnraum ist unter einem so schönen Dach gut aufgehoben.
Der Zusatz „Wood“ im NEXT by Danwood-Hausprogramm kennzeichnet Modulhäuser, deren Rahmenkonstruktion vollständig aus Holz statt aus Stahl besteht.
*Abbildungen zeigen teilweise individuelle Zusatzausstattung.
Hausstandard NEXT
Vollständige Baubeschreibung und Materialspezifikation.

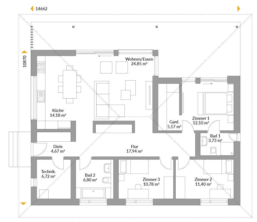
Grundrisse
Kompletter Plan aller Etagen mit Fläche
Das innovative Danwood-Modulbauprogramm bietet smarte schlüsselfertige Modulhäuser in moderner Architektur mit viel Glas, die komplett bis ins Detail im Werk vorgefertigt werden. Sie punkten mit kürzerer Lieferzeit und einer Aufbauzeit von drei Wochen. Ihr Alles-Inklusive-Konzept umfasst modernste Haustechnik, höchste Energieeffizienz und ausgesuchtes Innendesign.

Sogar fremde Leute haben uns im Ort angesprochen, wie schön unser Haus ist. Klar macht einen das stolz.