NEXT Wood 75FT verlängert Ihre Outdoor-Saison: Eine ganze Hausseite ist großzügig überdacht und schützt Ihren Terrassenplatz nicht nur vor zu viel Sonne, sondern auch vor kurzen Regenschauern. Sitzpolster können hier übernachten und Terrassenmöbel überwintern. Und falls Sie Ihr Flachdach begrünen möchten, ist das ein kleiner, aber schöner Beitrag zum Klimaschutz.
Der Zusatz „Wood“ im NEXT by Danwood-Hausprogramm kennzeichnet Modulhäuser, deren Rahmenkonstruktion vollständig aus Holz statt aus Stahl besteht.
*Abbildungen zeigen teilweise individuelle Zusatzausstattung.
Hausstandard NEXT
Vollständige Baubeschreibung und Materialspezifikation.

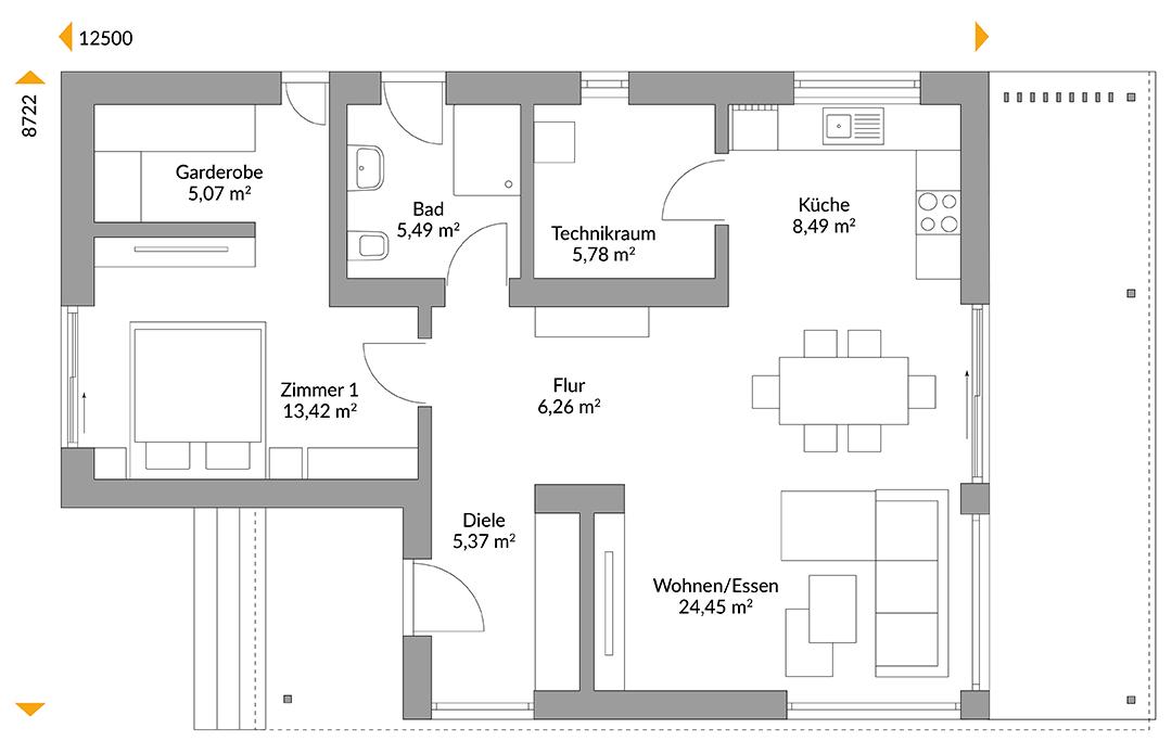
Grundrisse
Kompletter Plan aller Etagen mit Fläche
Das innovative Danwood-Modulbauprogramm bietet smarte schlüsselfertige Modulhäuser in moderner Architektur mit viel Glas, die komplett bis ins Detail im Werk vorgefertigt werden. Sie punkten mit kürzerer Lieferzeit und einer Aufbauzeit von drei Wochen. Ihr Alles-Inklusive-Konzept umfasst modernste Haustechnik, höchste Energieeffizienz und ausgesuchtes Innendesign.

Sogar fremde Leute haben uns im Ort angesprochen, wie schön unser Haus ist. Klar macht einen das stolz.