Es ist wie bei einem Diamanten, dessen Brillanz sich erst in einer schönen Fassung voll entfaltet: Der weiße Rahmen großformatiger Fassadenplatten fängt die Leichtigkeit der Architektur ein, gibt ihr Struktur und setzt ein klares Statement.
*Abbildungen zeigen teilweise individuelle Zusatzausstattung.
Hausstandard Vision
Vollständige Baubeschreibung und Materialspezifikation.

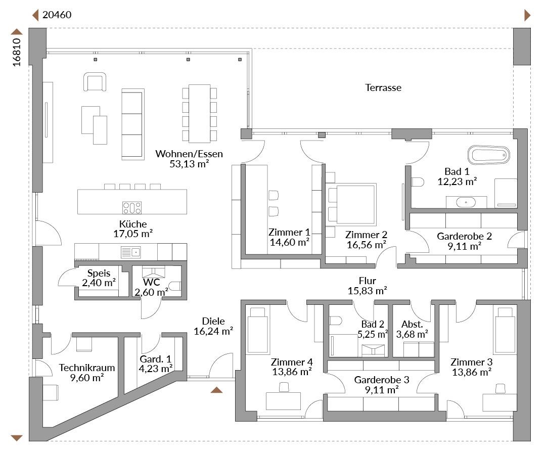
Grundrisse
Kompletter Plan aller Etagen mit Fläche






Sogar fremde Leute haben uns im Ort angesprochen, wie schön unser Haus ist. Klar macht einen das stolz.