• family_family126.jpg
  • family_family126_2.jpg
Family

Hausprojekt

Family 126

204.300

Sehen Sie hier alle Inklusivleistungen.

Danwood-Berater finden

Nutzen Sie die Unterstützung eines Spezialisten in Ihrer Region!

Beispiel: 12345
  • Fläche125,67
  • Geschosse1.5
  • Schlafzimmer3
  • Badezimmer1
  • Breite8,2m
  • Länge9,45m
  • Höhe8,19m
  • Dachneigung40°
  • Kniestockhöhe100m
  • GarageNein

Das charmante Family 126 von Danwood ist ein echtes Familienidyll. Ein lichtdurchflutetes Zuhause mit weitläufigem Wohn-Essbereich als Mittelpunkt, angrenzender gemütlicher Küche, einem praktischen Gäste-WC und Technikraum im Erdgeschoss. Das Obergeschoss ist eine Ruheoase mit drei behaglichen Schlafzimmern und einem großzügigen Wannenbad plus Dusche. Hier findet jedes Familienmitglied seinen Platz. Liebevoll gestaltet, bietet es den idealen Rahmen für gemeinsame Familienmomente und individuelle Rückzugsorte. Ein Nest der Geborgenheit und des Glücks.

*Abbildungen zeigen teilweise individuelle Zusatzausstattung.

    • Technikpaket FAMILY inkl. Fußbodenheizung (Luft-Wasser-Wärmepumpe mit Fußbodenheizung und zentraler Lüftungsanlage)
    • Lüftungsanlage mit Wärmerückgewinnung
    • Elektropaket - Steckdosen und Lichtschalter, Deckenlichtanschlüsse innen und außen, Netzwerkanschlüsse und TV-Anschlüsse, Anschlüsse für Küchen- und Haushaltsgeräte
    • Fliesen
    • Sanitärausstattung
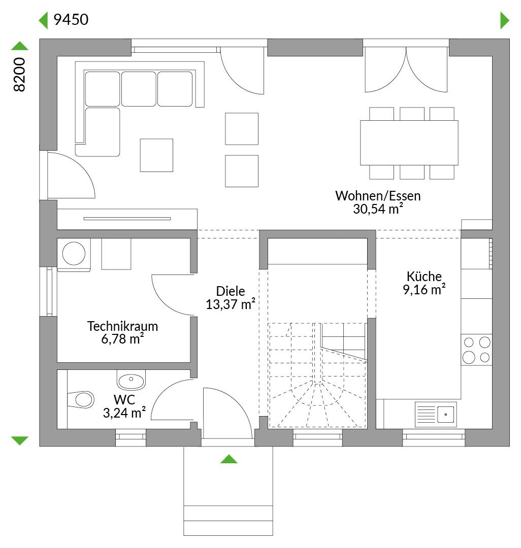
    • Erdgeschoss
    • Diele13,37
    • Wohnen/Essen30,54
    • Küche9,16
    • WC3,24
    • Technikraum6,78
    • Obergeschoss
    • Flur8,73
    • Zimmer 113,03
    • Zimmer 216,74
    • Zimmer 314,92
    • Bad9,16

    Grundrisse

    Innenräume

    Family

    Linie Family

    Mit unserem DAN-WOOD Family-Programm sparen Sie mehrfach: Dank des hohen Vorkonfigurationsgrad am Hauspreis, der  klimafreundlichen Bauweise mit günstiger Finanzierung und moderner Haus- und Heiztechnik bei den Heizkosten. Wählen Sie Ihren Wunschhaustyp - ob Bungalow, eineinhalbgeschossiges Haus oder schöner Zweigeschosser.

    Entdecken Sie die Hauslinie Family

    Weitere Projekte

     
     
     
     
     
     
     
     
     
     
     
     
     
     
     

    Gebautes Vertrauen – mit jedem einzelnen Haus.

    Sogar fremde Leute haben uns im Ort angesprochen, wie schön unser Haus ist. Klar macht einen das stolz.