Frühmorgens mit den Vögeln erwachen, barfuß durch den Tau laufen und zuschauen, wie zaghafte Sonnenstrahlen mit den Nebelschwaden flirten. Nach einer Runde im See den ersten Kaffee des Tages genießen. Kurz nochmal ins Bett kuscheln, bis das Frühstück auf die sonnige Terrasse lockt. Gefällt Ihnen so ein Szenario? Unser Mini-Ferienhaus mit einem Schlafzimmer wäre eine schöne Basis dafür. Klein genug, dass es kaum Arbeit bereitet, groß genug für entspannte Auszeiten. Es ist Raum für eine Küchenzeile, dem komfortablen Duschbad fehlt es an nichts, und drei gläserne Panoramawände bieten einen herrlichen Ausblick.
Hausstandard NEXT Holiday
Vollständige Baubeschreibung und Materialspezifikation.

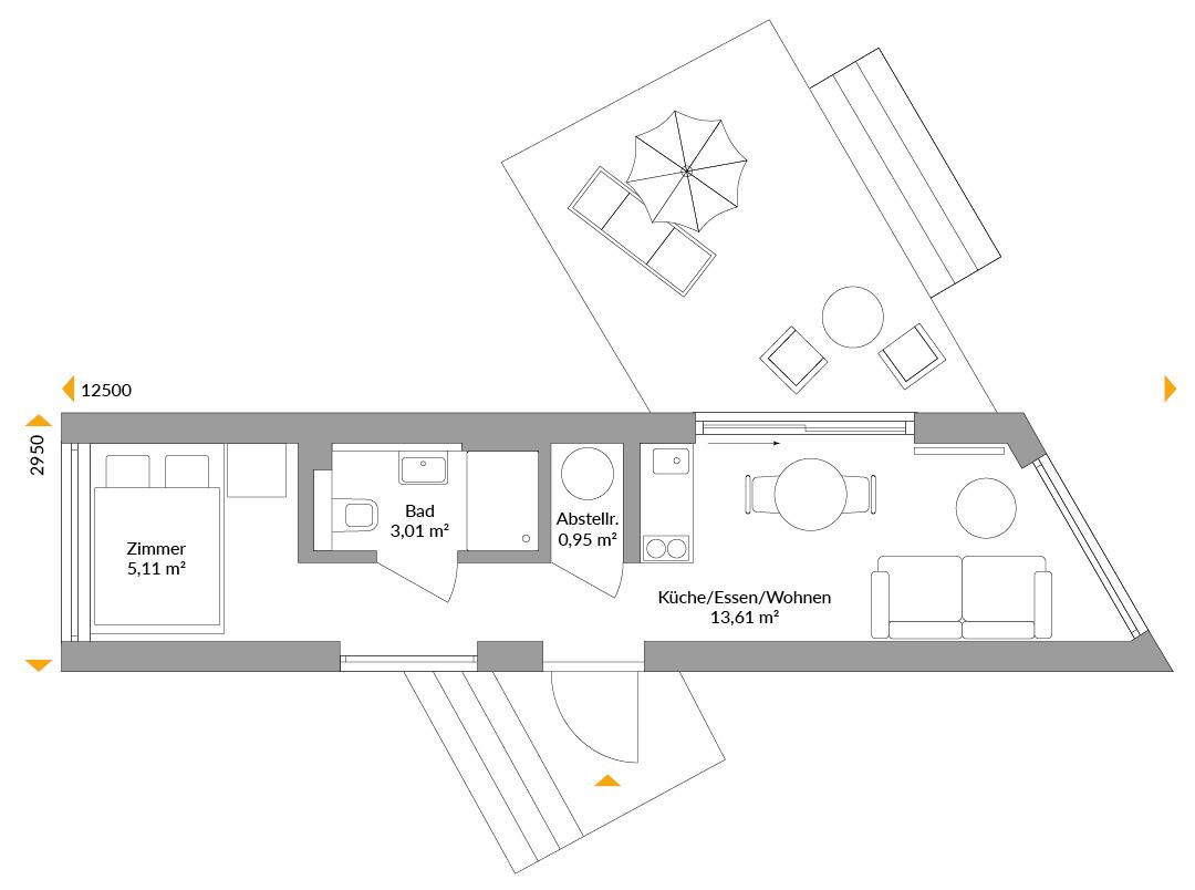
Grundrisse
Kompletter Plan aller Etagen mit Fläche






Sogar fremde Leute haben uns im Ort angesprochen, wie schön unser Haus ist. Klar macht einen das stolz.